Road detail drawing. Download cad free file | CADBULL
Description
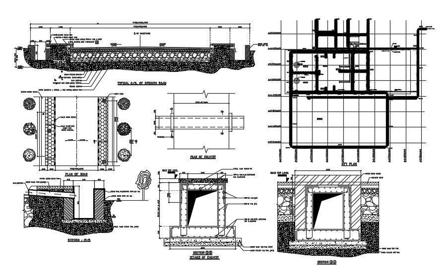
Road detail drawing provided in this AutoCAD drawing file. this file consists of a plan , section detail of the road given. also, dimensions and material specifications presented. this can be used by architects and engineers. Download this 2d AutoCAD drawing file.
Uploaded by:
